Ricerca rapida
Codice
Tipologia
Categoria
Città
Zona
Descrizione
Prezzo (da - a)
-
Mq (da - a)
-
Ordine
Cerca
Scheda Immobile

SUSEGANA - COLFOSCO

Codice CS124PM
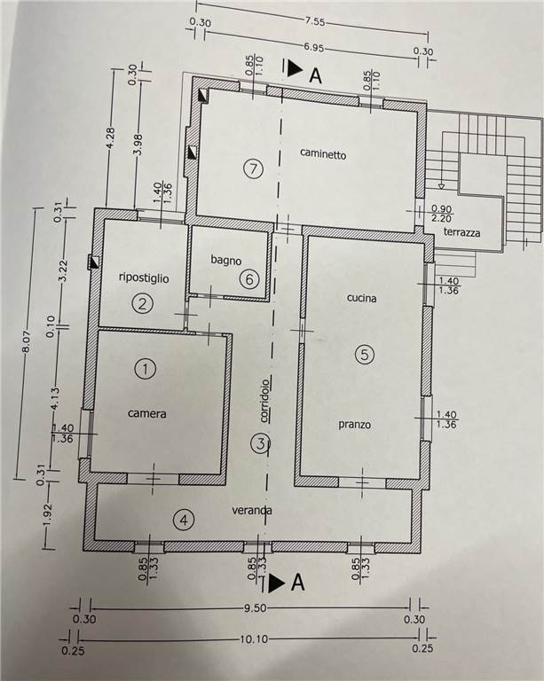
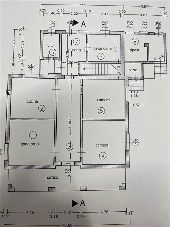
Proponiamo casa singola su lotto di mq 1700 di giardino in zona residenziale molto tranquilla e collinare. L'immobile e composto da due appartamenti con entrate indipendenti. Appartamento al piano terra con ingresso, soggiorno, cucina abitabile, due camere matrimoniali, grande bagno, ripostiglio e cantina al piano interrato con collegamento interno. Appartamento al piano primo con ingresso da scala esterna composto da zona taverna con caminetto, zona giorno con angolo cottura, camera matrimoniale, camera singola e bagno. Possibilità di edificare ulteriore volumetria per casa bifamiliare. Immobile ideale anche per due nuclei familiari. Da Vedere!!
Prezzo
235.000,00 EUR
Mq
280
Classe
G (344,27)
Locali
10
Camere
4
Bagni
2
Mq Giardino
1700
Cantina - Solaio
Cantina
Richiedi informazioni
Compila questo modulo per inviarci una mail
di richiesta informazioni per questo immobile
Riferimento Immobile
Nominativo
Telefono
Email
Testo richiesta
Autorizzo il trattamento dei miei dati personali in base Regolamento UE n. 679/2016 - Privacy Policy
Tutti i campi sono obbligatori
Invia
MAPPA
Via Belvedere 9, Susegana (TV)
Cookie preference